Of algengt að ráðningarsamning vanti

Samkvæmt niðurstöðum könnunar sem ASÍ og SA létu Capacent Gallup framkvæma er 85% launafólks á Íslandi með skriflegan ráðningarsamning eða skriflega staðfesta ráðningu. Á almennum vinnumarkaði er hlutfallið þó aðeins 75% meðan það er 98% á opinberum vinnumarkaði. 8% launafólks hefur aldrei haft skriflegan ráðningarsamning eða fengið ráðningu staðfesta skriflega. Staðan er verst í aldurhópnum 18-24 ára þar sem hlutfallið er 14%. Ljóst er margt má bæta og ítrekað að launafólk gangi eftir þessum réttindum sínum þegar við ráðningu eða skömmu eftir hana.

Nánar:

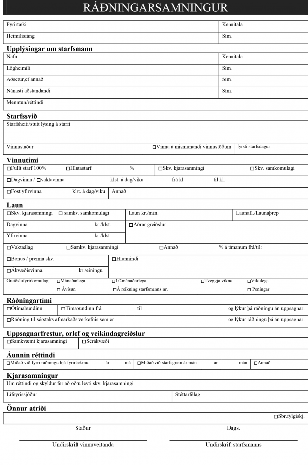
Tilskipun ESB 91/533 um skyldu vinnuveitanda að skýra launþegum frá samningsskilmálum eða ráðningarfyrirkomulagi var innleidd hér á landi með kjarasamningum. Sé starfsmaður ráðinn til lengri tíma en eins mánaðar og að meðaltali lengur en átta klst. á viku, skal eigi síðar en tveim mánuðum eftir að starf hefst gerður skriflegur ráðningarsamningur eða ráðning staðfest skriflega. Láti starfsmaður af störfum áður en tveggja mánaða frestinum lýkur, án þess að skriflegur ráðningarsamningur hafi verið gerður eða ráðning staðfest skriflega, skal slík staðfesting látin í té við starfslok.

Við gerð kjarasamninga á almennum vinnumarkaði 2013 ákváðu ASÍ og SA að láta kanna framkvæmd þessara ákvæða, þ.e. hvort launafólk væri almennt með skriflega ráðningarsamninga eða skriflega staðfestingu ráðningar. Þá var samið um að brot gegn ákvæðum kjarasamninga hér að lútandi geti varðað skaðabótum. 

Haustið 2014 var samið við Capacent um framkvæmd könnunar og liggja niðurstöður fyrir. Þó þær séu nokkuð afgerandi og flest launafólk sé með skriflega ráðningarsamninga eða skriflega staðfestingur ráðningar vantar talsvert upp á framkvæmdin sé í lagi en svo virðist sem að 25% launafólks á almennum vinnumarkaði sé hvorki með skriflegan ráðningarsamning eða skriflega staðfestingur ráðningar. Ekki verður of oft ítrekað að launafólk gangi eftir því við ráðningu eða strax í kjölfar hennar að ráðning og ráðningarkjör verði staðfest og forðist þannig ágreining í framhaldinu um það hvað hafi verið samið um. Í ráðningarsamningi eða skriflegri staðfestingu ráðningar á a.m.k. eftirfarandi að koma fram:

  1. Deili á aðilum þ.m.t. kennitölur.
  2. Vinnustaður og heimilisfang vinnuveitanda. Sé ekki um fastan vinnustað að ræða, eða stað þar sem vinnan fer jafnaðarlega fram, skal koma fram að starfsmaður sé ráðinn á mismunandi vinnustöðum.
  3. Titill, staða, eðli eða tegund starfs sem starfsmaður er ráðinn í eða stutt útlistun eða lýsing á starfinu.
  4. Fyrsti starfsdagur.
  5. Lengd ráðningar sé hún tímabundin.
  6. Orlofsréttur.
  7. Uppsagnarfrestur af hálfu vinnuveitanda og starfsmanns.
  8. Mánaðar- eða vikulaun, t.d. með tilvísun til launataxta, mánaðarlaun sem yfirvinna er reiknuð af, aðrar greiðslur eða hlunnindi svo og greiðslutímabil.
  9. Lengd venjulegs vinnudags eða vinnuviku.
  10. Lífeyrissjóður.

Könnun Capacent Gallup

„Ráðningarsamningar – Form og efni“  á Vinnuréttarvef ASÍ